TECECOMPACT WC FIXTU R 112CM WC-FIXTUR 50

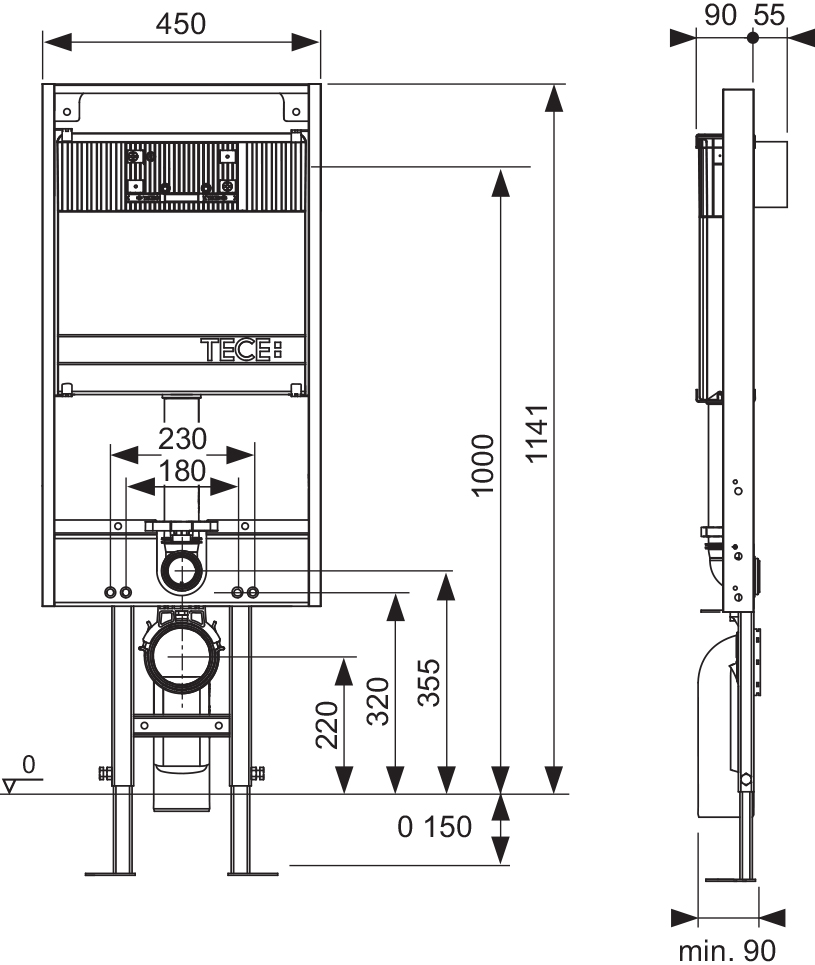
TECEconstruct Inbyggnadsfixtur för vägghängda WC-stolar. För installation i eller utanpå vägg. Allmän information 6,5 liters cistern som levereras förinställd på 6 liter med den stora spolningen och 3 liter med den lilla spolningen. Stora spolningen kan enkelt justeras mellan 4-9 liter. Hela spolcisternen är kondensisolerad Enkel eller dubbelspolning beroende på val av spolknapp Mycket låg ljudnivå vid spolning c/c avstånd på WC-bultar för montage av WC-porslin är 180 mm och 230 mm Justerbara ben/fötter 0- 200 mm Leveransomfattning: 2 st M12 bult med mutter för WC-porslin DN90 Rak avloppsanslutning (för installation i bakre vägg) DN90 90° avloppsböj (för avloppsanslutning i golv) DN 90/100 reducermuff 4 st väggfästen Beställs separat: Spolknapp Ljudisoleringsskiva, RSK 7926206
Info 1 Art nr Info 2 Bruttopris inkl. moms
8000067
Funktion: dubbelspolning
Färg: röd/flerfärgad
Innehavare: TECE Sverige AB
Leverantörens art.nr.: 9500102
Material: stål/flermaterial
Storlek: 500x1120mm (BxH)
Tryck/Flöde/Temp: 3/6 liters spolning