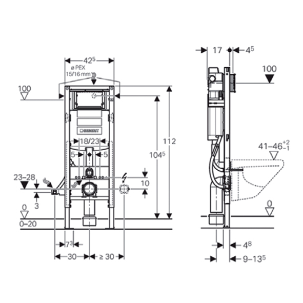
Duofix Sigma smal

WC-fixtur för manövrering framifrån. 3/6 litersspolning. R15 utv.gg för ansl. av ink. vatten från vänster, höger eller mitten. Pex-koppling för 15x2,5 & 16x2,2 medföljer. OBS! Levereras utan nedre väggfäste, köp till Z-4163 / 8002535.
Info Art nr Dok Benämning Typ 1 Typ Bruttopris exkl. moms Bruttopris inkl. moms Lagersaldo
Z6181
DUOFIX WC-ELEMENT SMAL MODELL H112 111.312.00.5
Sigma
Smal
4 127,00 5 159,00